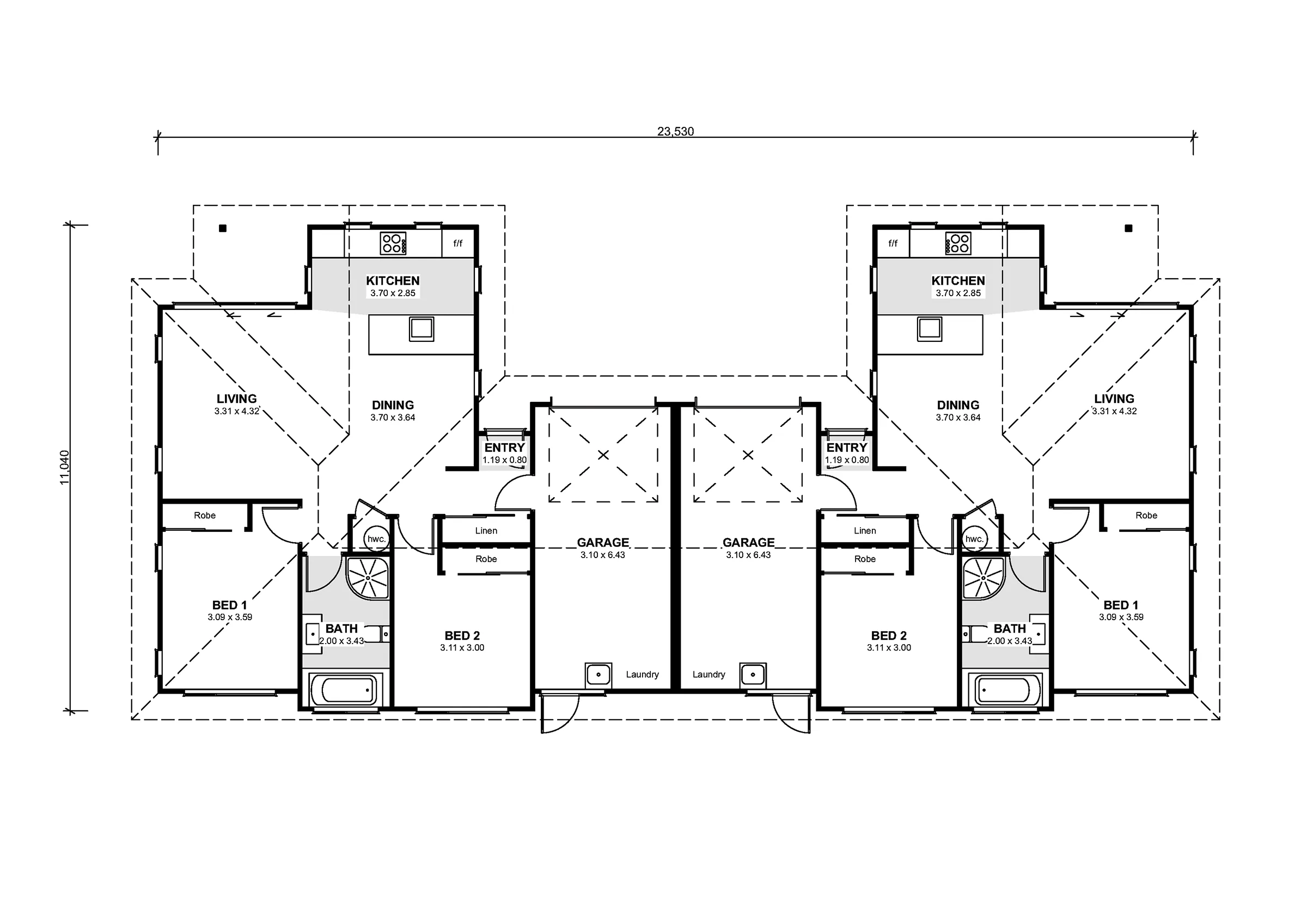
Area

130 m2

Car Parking

1

Bathrooms

1

Bedrooms

3

Plan 04-25

LET’S DISCUSS YOUR NEW HOME

Sending...

YOU MIGHT ALSO LIKE

Plan 04-75

166M2

Car Parking

3

Bathrooms

2

Bedrooms

2

Plan 04-50

160M2

Car Parking

1

Bathrooms

2

Bedrooms

3

Plan 04-10

103M2

Car Parking

1

Bathrooms

1

Bedrooms

2

NEWSLETTER SIGN UP

Sign up now to receive regular updates and advice

Sending...