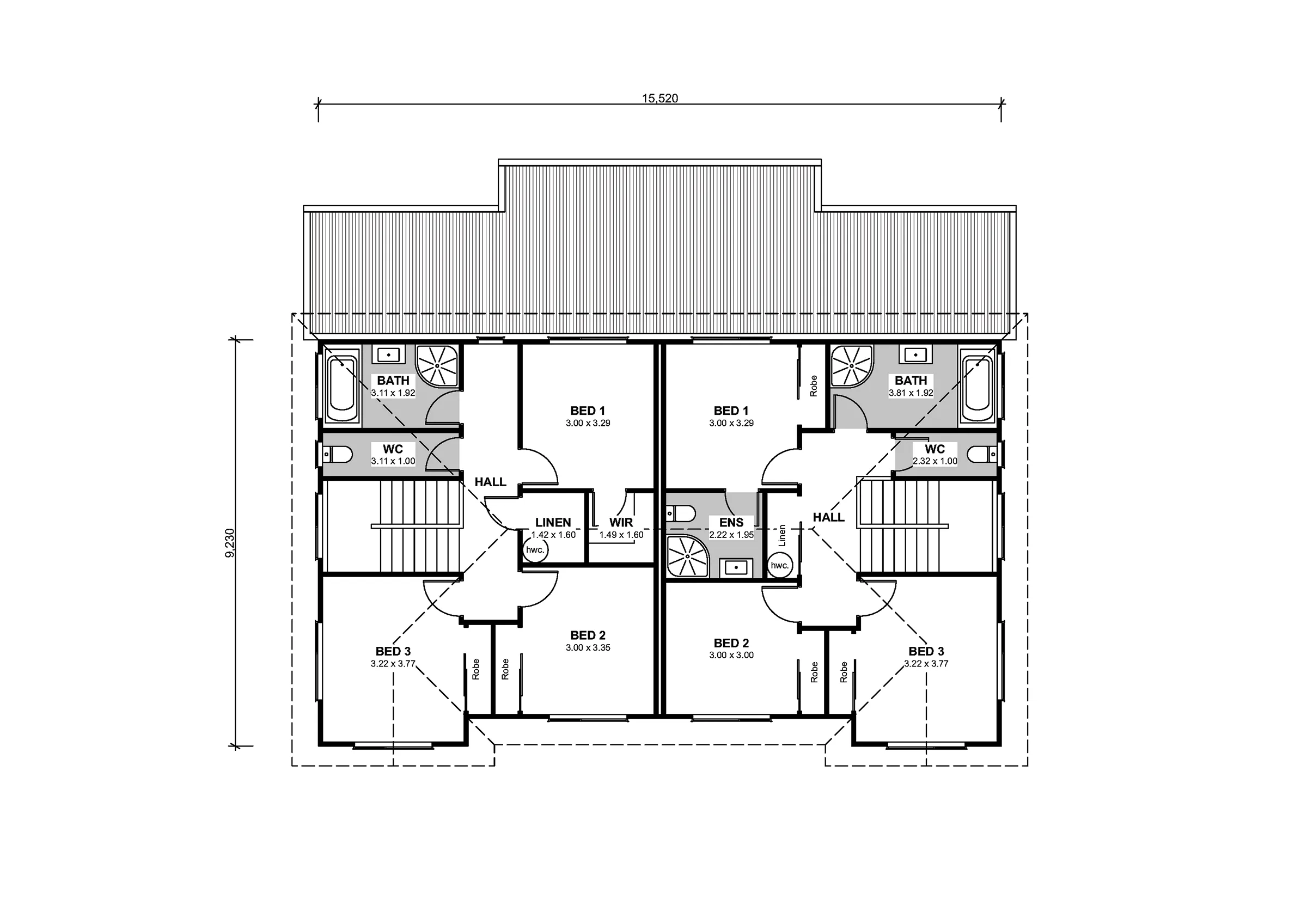
Area

322 m2

Car Parking

1

Bathrooms

2

Bedrooms

3

Plan 10-10

LET’S DISCUSS YOUR NEW HOME

Sending...

YOU MIGHT ALSO LIKE

Plan 10-20

213M2

Car Parking

1

Bathrooms

1

Bedrooms

2

NEWSLETTER SIGN UP

Sign up now to receive regular updates and advice

Sending...