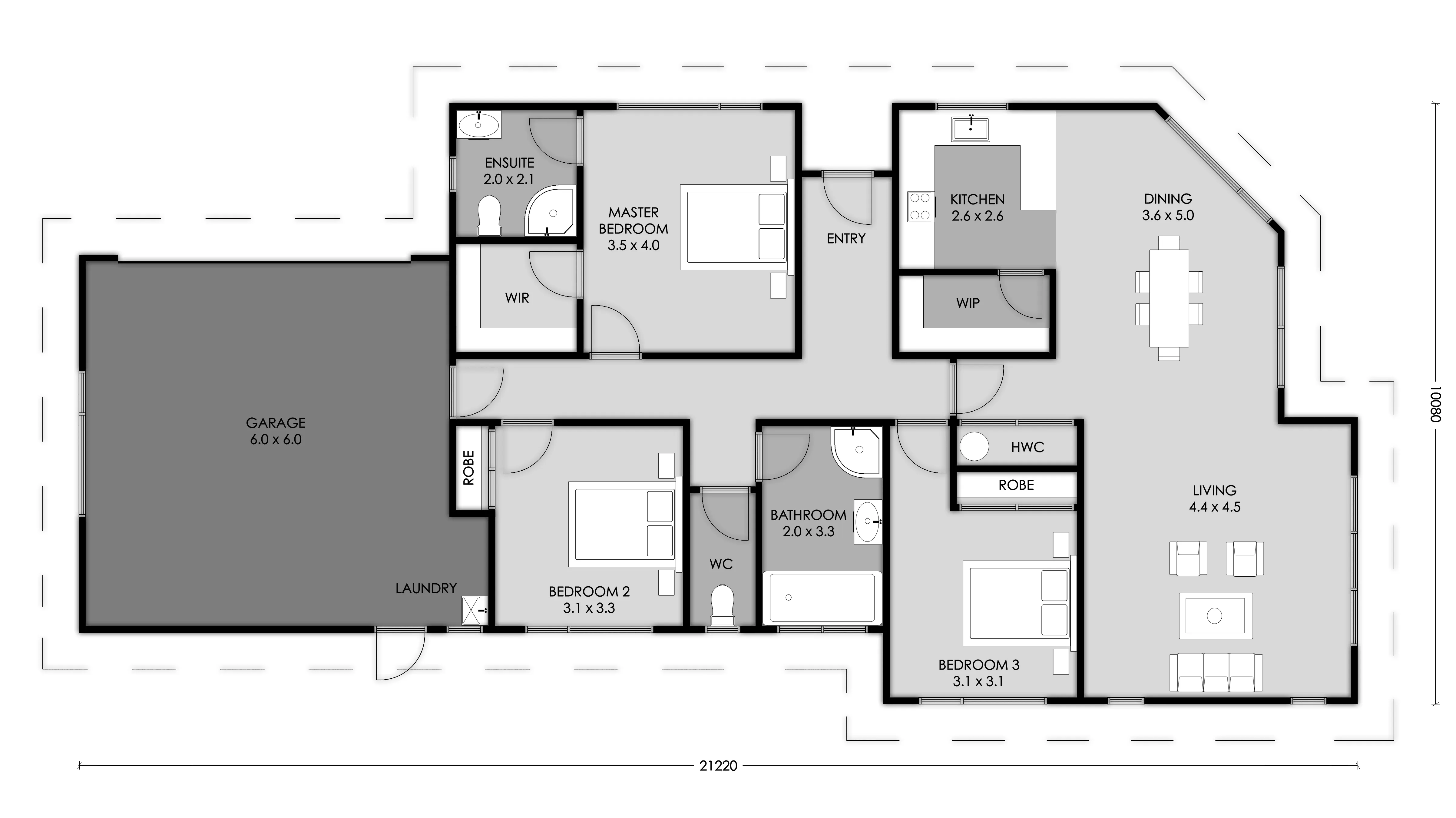
Area

171 m2

Car Parking

2

Bathrooms

2

Bedrooms

0

Plan 14-35

LET’S DISCUSS YOUR NEW HOME

Sending...

YOU MIGHT ALSO LIKE

Plan 14-105

281M2

Car Parking

2

Bathrooms

2

Bedrooms

4

Plan 14-90

244M2

Car Parking

2

Bathrooms

2

Bedrooms

4

Plan 14-45

177M2

Car Parking

2

Bathrooms

3

Bedrooms

3

NEWSLETTER SIGN UP

Sign up now to receive regular updates and advice

Sending...