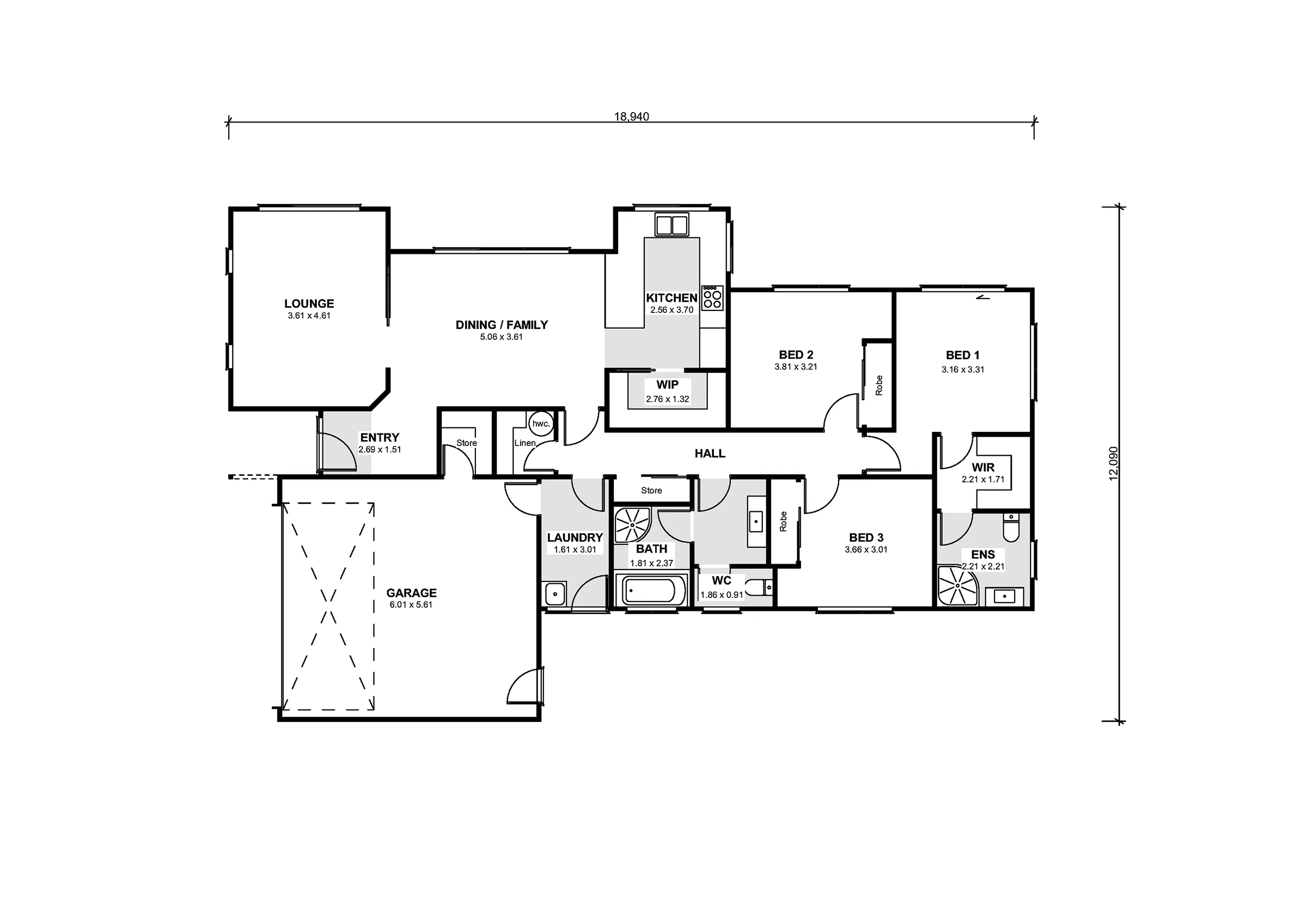
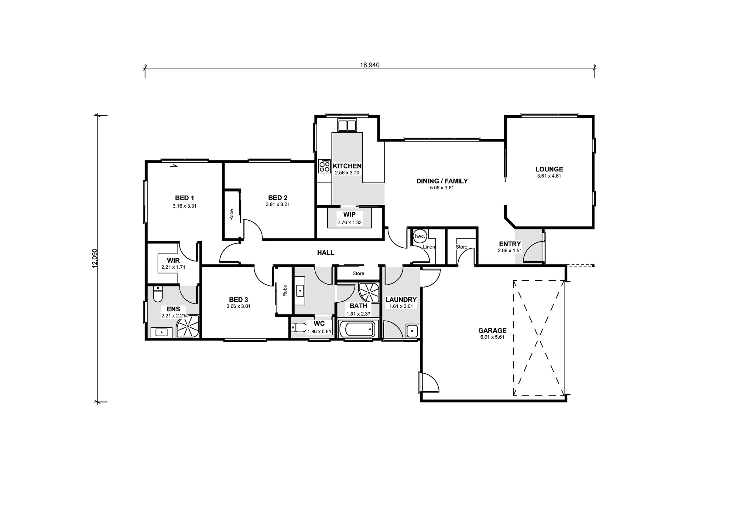
Area

177 m2

Car Parking

2

Bathrooms

2

Bedrooms

3

Plan 14-45

LET’S DISCUSS YOUR NEW HOME

Sending...

YOU MIGHT ALSO LIKE

Plan 14-100

258M2

Car Parking

2

Bathrooms

2

Bedrooms

3

Plan 14-70

221M2

Car Parking

2

Bathrooms

2

Bedrooms

4

Plan 14-45

177M2

Car Parking

2

Bathrooms

3

Bedrooms

3

NEWSLETTER SIGN UP

Sign up now to receive regular updates and advice

Sending...