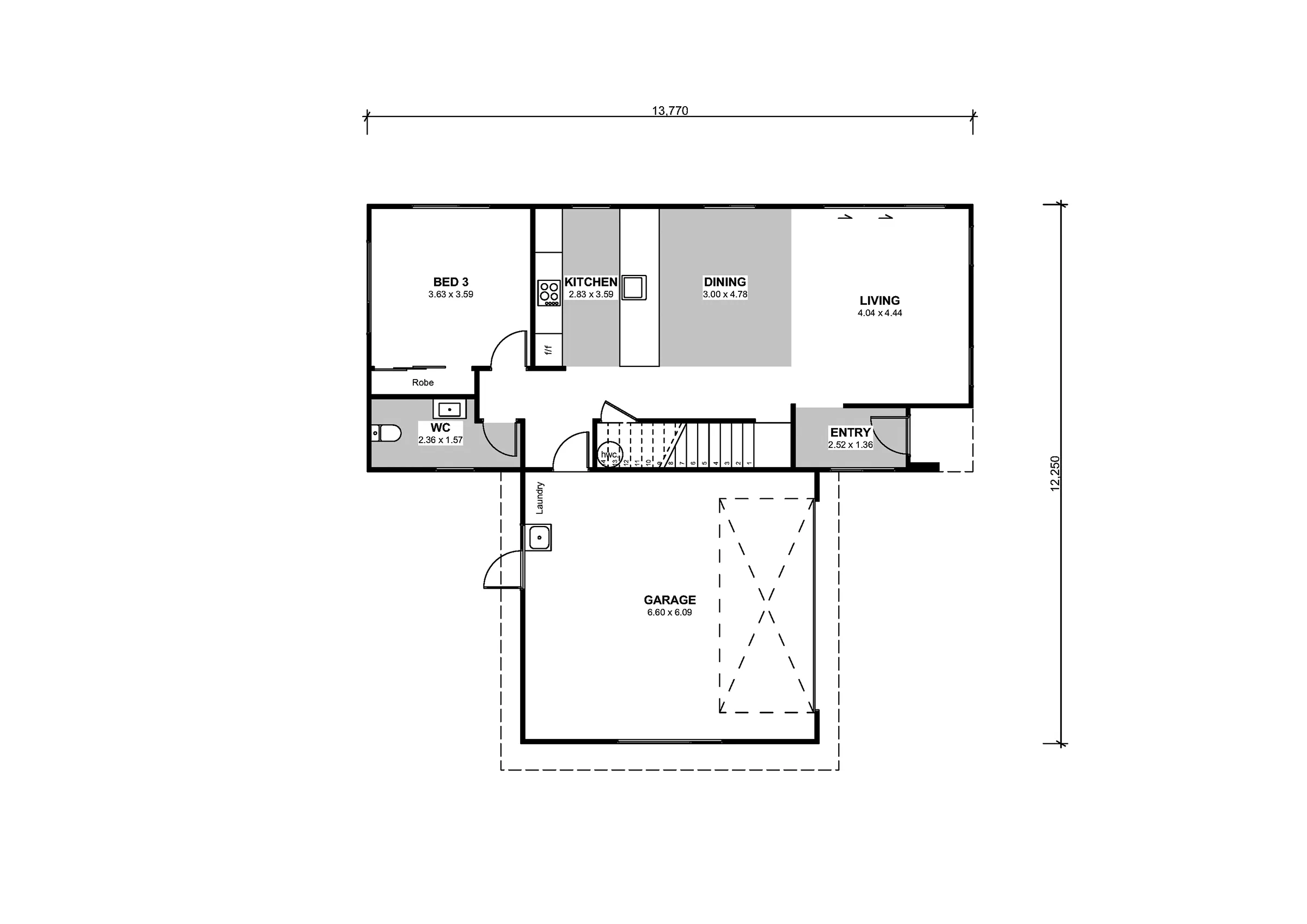
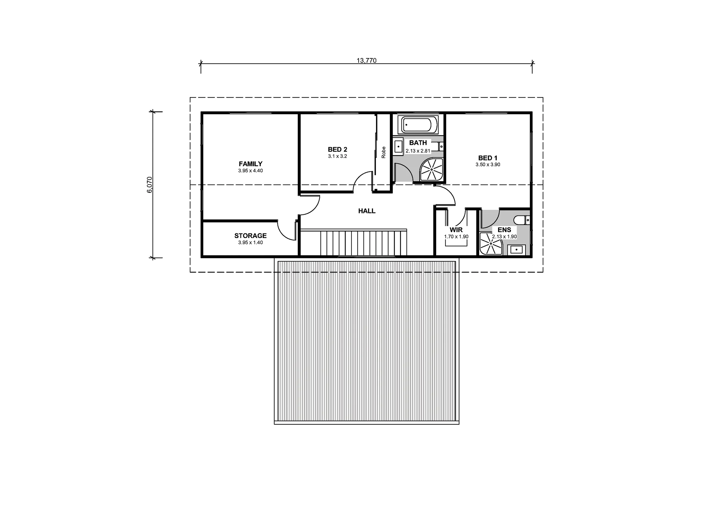
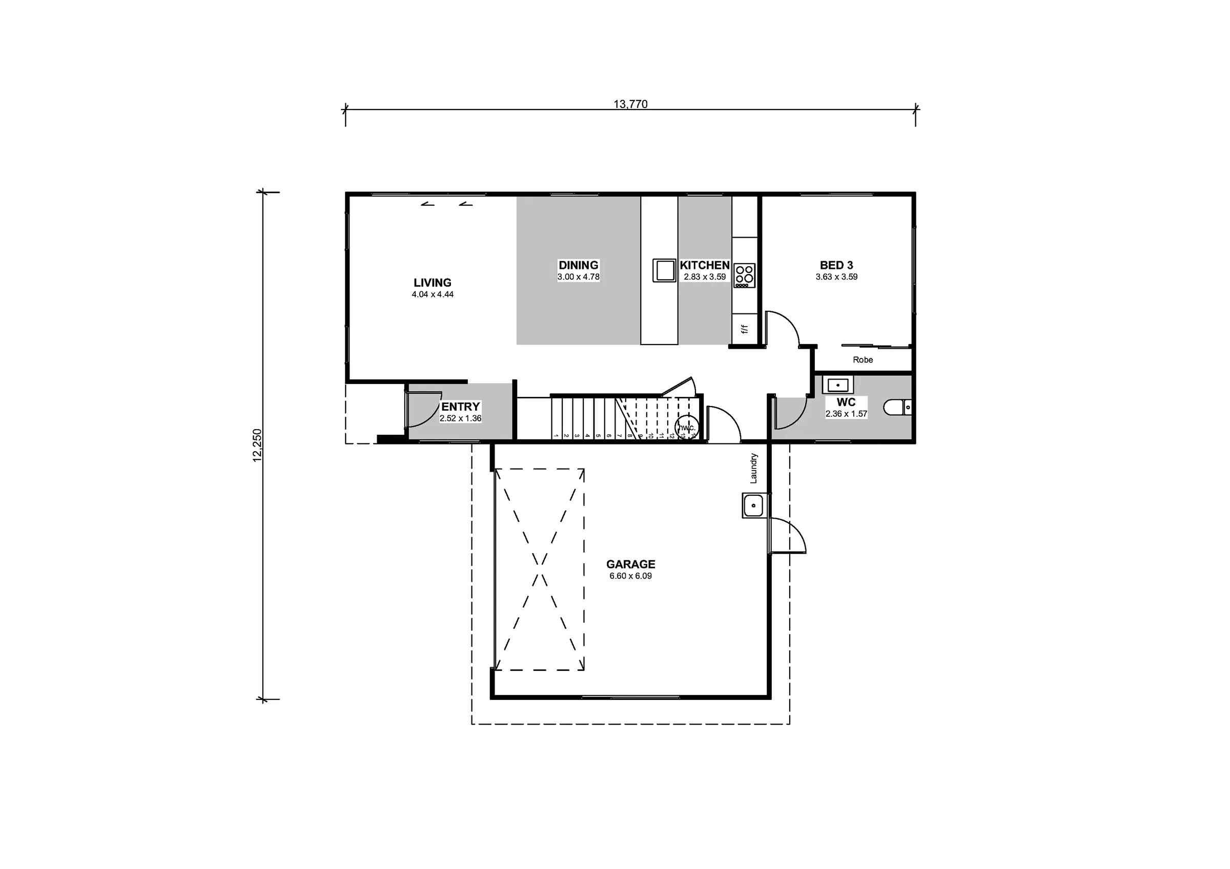
Area

214 m2

Car Parking

2

Bathrooms

2

Bedrooms

3

Plan 18-10

LET’S DISCUSS YOUR NEW HOME

Sending...

YOU MIGHT ALSO LIKE

Plan 18-20

238M2

Car Parking

2

Bathrooms

2

Bedrooms

4

NEWSLETTER SIGN UP

Sign up now to receive regular updates and advice

Sending...