$847,000

29 Cork Street, Halswell, CHRISTCHURCH

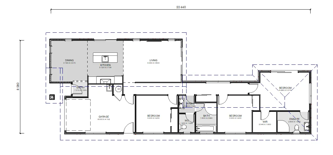
With construction now under way interest is growing for this stunning newly designed 3 bedroom home which makes great use of space and natural light throughout. This home will surpass all expectations and provide what you would expect for modern living with a separate toilet, bathroom and ensuite, WIR and a fabulous open plan kitchen/dining/living, Plaster exterior cladding with Linea Oblique features.

  • Open plan kitchen, living and dining
  • Quality floor covering throughout
  • Generous kitchen allowance to create your dream kitchen with Fisher & Paykel appliances
  • Methven Tapware and quality bathroom fittings
  • Heat pump
  • High-spec floor covering throughout
  • Garage
  • Allowance for concrete drive & patio areas
  • Mailbox & clothesline
  • 10 Year Master Builders Guarantee

All you need to do is add your own soft landscaping touches to make this plan complete.

For more information on this Package and Inclusions, call Trident Homes Christchurch 03 349 0020 or email [email protected] 

Copyright to this bespoke plan is exclusive to Trident Homes.

 

Photos are artists' impressions only

Area

140 m2

Car Parking

1

Bathrooms

2

Bedrooms

3

29 Cork Street, Halswell, CHRISTCHURCH

LET’S DISCUSS YOUR NEW HOME

Sending...

NEWSLETTER SIGN UP

Sign up now to receive regular updates and advice

Sending...