$1,064,000

66 Fairmaid Street, Lot 4534 Te Whariki, Lincoln, CANTERBURY

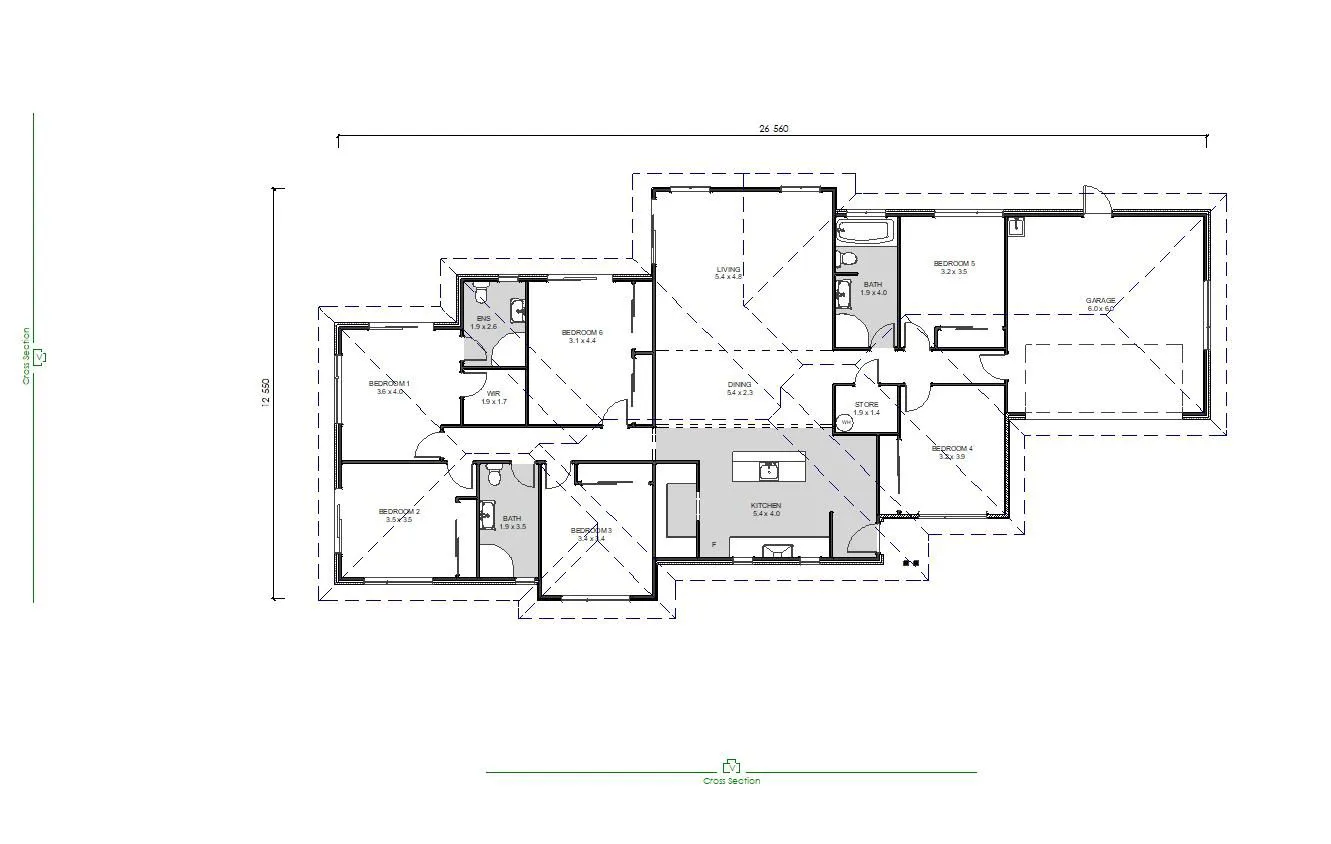
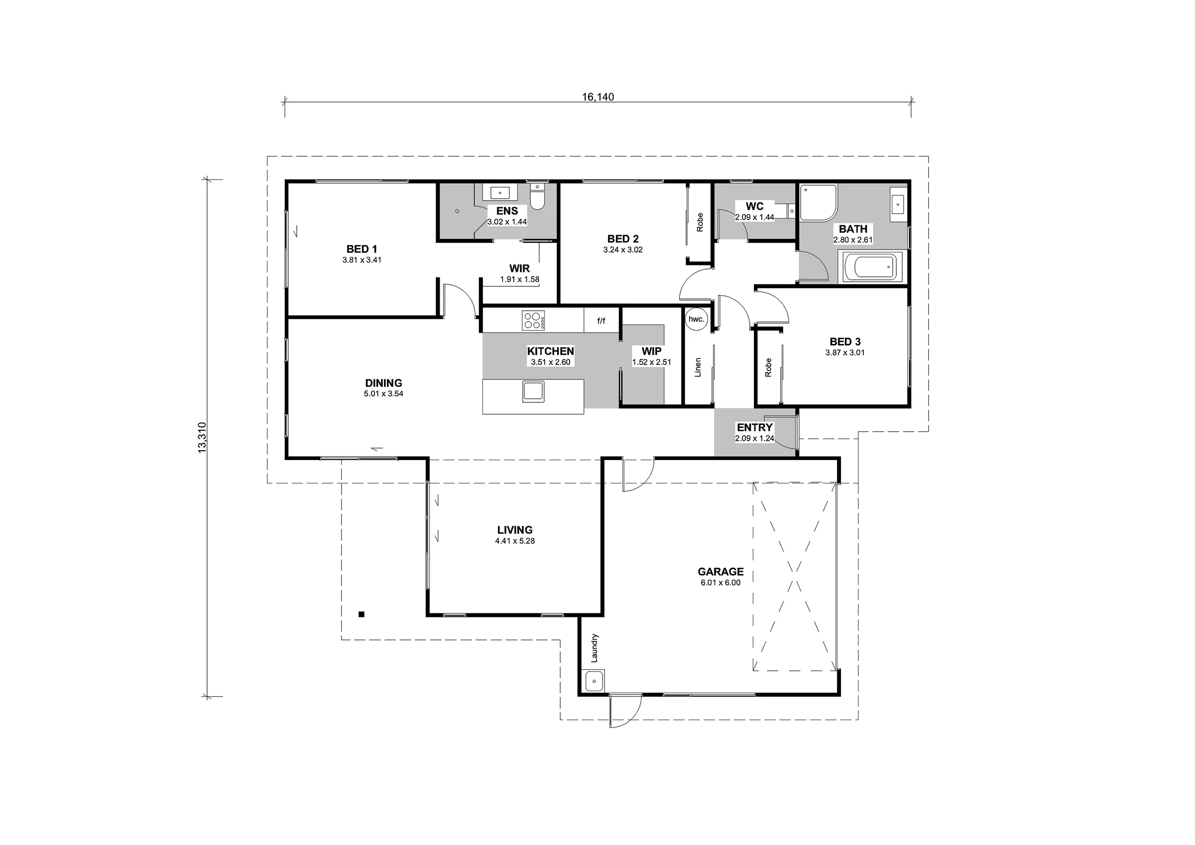
Pick your option for this generous family home or great investment property with 5 Bedrooms, 3 bathrooms and 2 living areas.  This stunning custom-designed home has been created specifically for this section.

With construction now well underway and completion scheduled for March/April 2026, now is the time for serious purchasers to enquire about this unique property and secure your piece of this desirable subdivision.

There are limited sections still available and rarely of this size located as close to the university.

Features of this fantastic property include an open plan kitchen, dining & family with a separate Lounge and scissor trusses feature ceilings extending through the dining, family and living areas.  Smartly positioned on this large private rear section to allow for ample off-street parking for vehicles, including space for the toys, it covers all bases. 

  • Feature ceilings
  • Custom-designed Kitchen with Fisher & Paykel appliances
  • Master bedroom with fabulous tiled ensuite
  • Separate Laundry
  • Quality Methven Tapware range
  • Ducted Heat pump
  • Quality floor covering throughout, including vinyl planking (entry, dining, living, kitchen, WIP, laundry, bathroom & WC
  • Double Garage
  • Plaster and Axon feature cladding
  • Concrete drive & patio areas
  • Mailbox & clothes line

All you need to do is add your own soft landscaping touches to make this plan complete. 

For more information on this Package and Inclusions, call Trident Homes Christchurch 03 349 0020 or email jmckenzie@tridenthomes.nz 

 

Photos are artists' impressions only

Area

244 m2

Car Parking

2

Bathrooms

3

Bedrooms

5

66 Fairmaid Street, Lot 4534 Te Whariki, Lincoln, CANTERBURY

LET’S DISCUSS YOUR NEW HOME

Sending...

NEWSLETTER SIGN UP

Sign up now to receive regular updates and advice

Sending...