68 Fairmaid Street, Lot 4533, Te Whariki, Lincoln, CANTERBURY

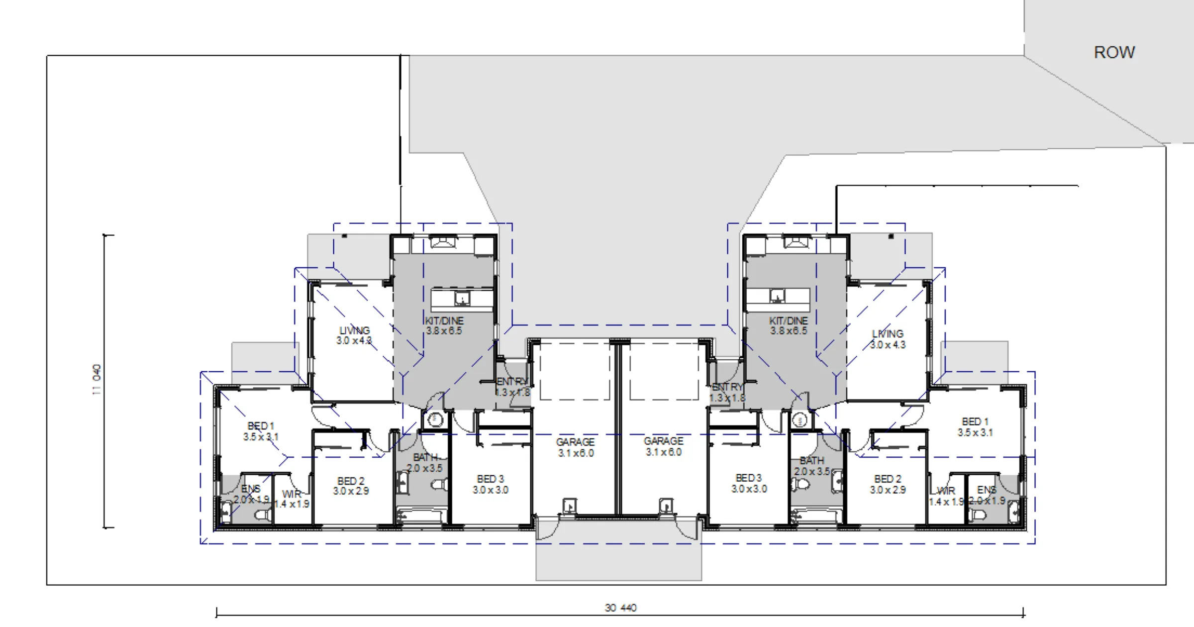
Check out this great Duplex opportunity on a private rear section consisting of two three-bedroom homes with bathrooms and separate en-suites for not much more than one home.

This concept package just needs your finishing touches and any specific changes you may require to suit your needs, along with council consent for the build to begin.

Package highlights:

  • Open Plan Kitchen / Dining / Family Rooms
  • Custom-designed kitchens
  • Ensuites and Walk-in Wardrobes to Master Bedrooms
  • Quality Methven Tapware
  • Fisher & Paykel Appliances
  • Heat Pumps
  • Quality Floor Coverings
  • Garaging and off-street parking
  • Allowance for Concrete Drives, Patios and Paths
  • Clotheslines and Letterboxes

Just add your Soft Landscaping (lawn and plants) to make this fantastic home complete.

Pictures and plans shown are artist's impressions only and may show items not included in the building contract, only items contained in the contract specifications of your building contract will be included.

For more information, call Trident Homes Christchurch 03 349 0020 or email [email protected]

 

Area

242 m2

Car Parking

2

Bathrooms

4

Bedrooms

6

68 Fairmaid Street, Lot 4533, Te Whariki, Lincoln, CANTERBURY

LET’S DISCUSS YOUR NEW HOME

Sending...

NEWSLETTER SIGN UP

Sign up now to receive regular updates and advice

Sending...