$729,000

Lot 4/126 Fitzherbert Avenue, Tawhero, Whanganui

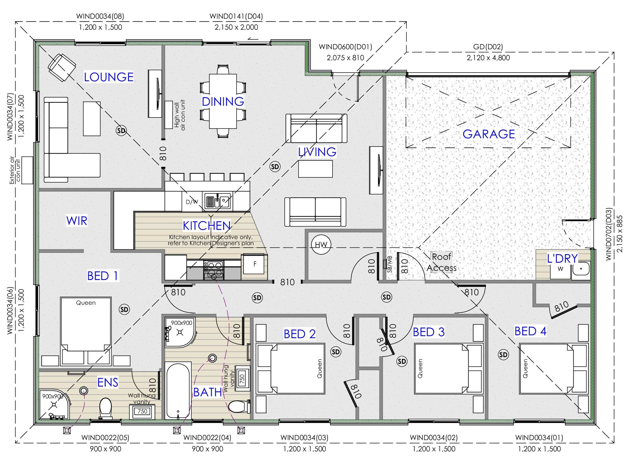
Discover comfort, style, and functionality in this beautifully designed Trident Homes house and land package.  The Horizon is a modern four-bedroom home that makes the most of every square metre, blending open-plan living with practical family spaces.

Step inside to a light-filled kitchen, dining, and living area that opens effortlessly to the outdoors.  Perfect for entertaining or relaxing with the family.  The well-appointed kitchen includes a central island and walk-in pantry, providing plenty of storage and bench space for everyday living. 

The master suite offers a private retreat complete with a walk-in robe and ensuite, while three additional bedrooms provide ample space for family, guests, or a home office, a separate bathroom, double garage with internal access, and a dedicated laundry area for extra convenience. 

Finished with quality workmanship and thoughtful design details.  The Horizon delivers the perfect balance of practicality and style, all set on a desirable Fitzherbert Avenue section close to all amenities and schools. 

Area

175 m2

Car Parking

2

Bathrooms

2

Bedrooms

4

Lot 4/126 Fitzherbert Avenue, Tawhero, Whanganui

LET’S DISCUSS YOUR NEW HOME

Sending...

NEWSLETTER SIGN UP

Sign up now to receive regular updates and advice

Sending...