Hampton Grove, Prebbleton, CHRISTCHURCH

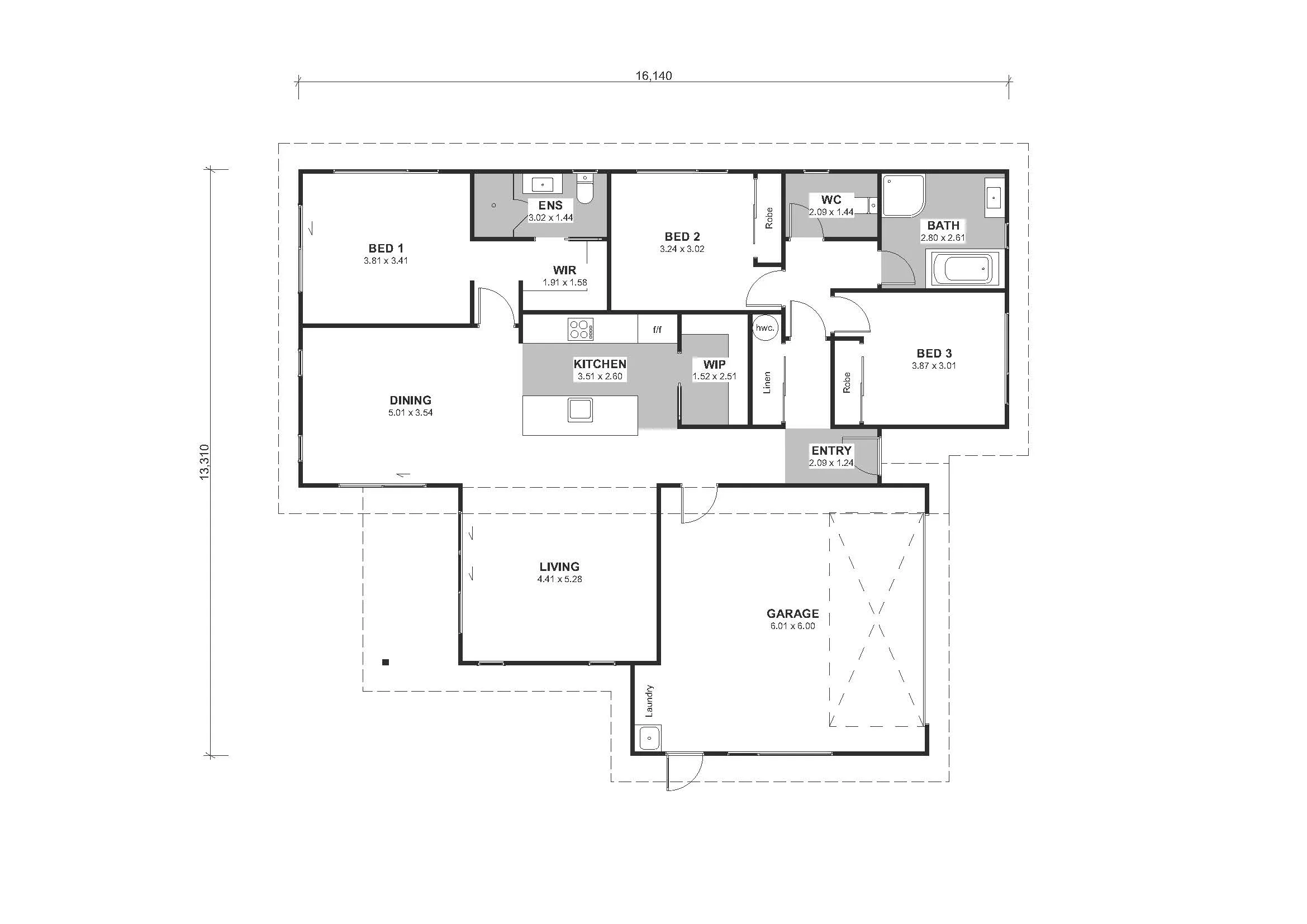
Designed for Prebbleton's prestigious subdivision of Hampton Grove this stunning Mono-pitch will be the talk of the area.  So many fabulous features in this 3 bedroom, 2 bathroom plaster & weatherboard house with fantastic north facing living to spend your time relaxing and enjoying the outdoors.

Still in the planning stage, not yet under construction, with titles due mid-2025.  Hampton Grove is selling fast so contact us now to secure your piece of this desirable subdivision.

Features of this home include:

  • Open plan kitchen, living and dining
  • Master bedroom with fabulous tiled ensuite
  • Quality floor coverings throughout, including vinyl planking (entry, kitchen, WIP, bathroom & WC)
  • Generous kitchen allowance to create your dream kitchen with Fisher & Paykel appliances
  • Heat pump
  • Quality Methven Tapware range
  • Double Garage
  • Allowance for concrete drive & patio areas
  • Mailbox & clothesline

All you need to do is add your own soft landscaping touches to complete this plan. 

For more information, call Trident Homes Christchurch 03 349 0020 or email [email protected]

Pictures and images are artistic representations only

Area

170 m2

Car Parking

2

Bathrooms

2

Bedrooms

3

Hampton Grove, Prebbleton, CHRISTCHURCH

LET’S DISCUSS YOUR NEW HOME

Sending...

NEWSLETTER SIGN UP

Sign up now to receive regular updates and advice

Sending...