Lot 20 Harakeke Estate, Redwood, Christchurch

This proposed package has been chosen to suit Lot 20 Harakeke Estate, but we can provide alternative options that work on other sections in the Subdivision.

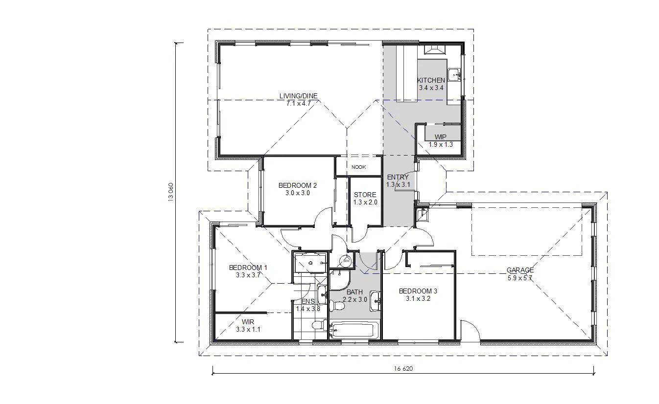
Check out this practical design incorporating fantastic open plan living with 3 generous bedrooms, 2 bathrooms and a double garage.  Low maintenance, clad in brick with James Hardie Linea Weatherboard features.

Features of this fantastic package:

  • Open plan living with a scissor truss ceiling for an added feeling of grandeur
  • Custom-designed Kitchen
  • 3 generous Bedrooms
  • Master Bedroom with tiled Ensuite and Walk-In-Robe
  • Great family Bathroom
  • Methven Tapware
  • Fisher & Paykel appliances
  • Heat pump with wifi control
  • Quality floor coverings
  • Exposed Aggregate Driveway & Patio allowance

This is still at the concept planning stage, so there is plenty of opportunity to include your own personal touches.

10 Year Master Build Guarantee.

For more information on this Package and Inclusions, call Trident Homes Christchurch 03 375-9020 or email [email protected]

 

Pictures are artists' impressions only

Area

172 m2

Car Parking

2

Bathrooms

2

Bedrooms

3

Lot 20 Harakeke Estate, Redwood, Christchurch

LET’S DISCUSS YOUR NEW HOME

Sending...

NEWSLETTER SIGN UP

Sign up now to receive regular updates and advice

Sending...