42 Kittyhawk Drive, Kinloch, Taupo

House & Land Package – Stunning Views in Kinloch


Secure a brand-new home in the sought-after lakeside community of Kinloch, Taupo.  This quality House & Land Package offers breathtaking views and modern, easy-care living in a peaceful setting.  Designed to maximise outlook and sunlight, the home features open-plan living, contemporary finishes, and seamless indoor–outdoor flow—perfect for relaxed Taupō living just minutes from the lake, marina, and village amenities.

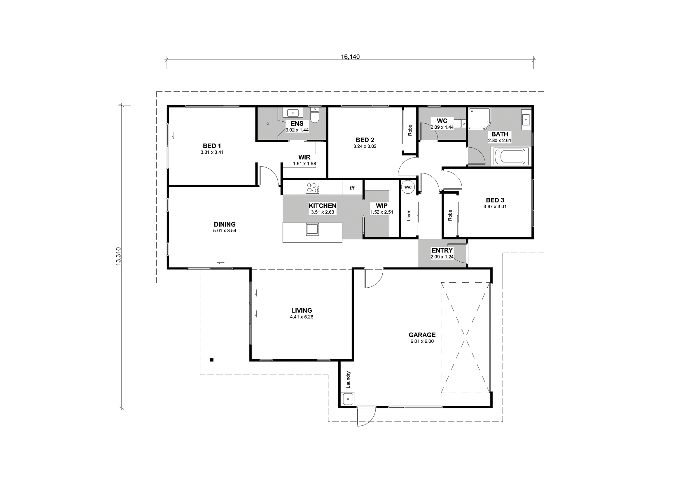
  • 174.2m2 floor area with open plan kitchen/dining/living
  • 3 generous bedrooms
  • Master bedroom with walk-in wardrobe and ensuite
  • Ducted heat pump system
  • Quality Fisher & Paykel appliances
  • Double garage
  • Kitchen with walk in pantry
  • Generous 935m2 section (more or less)

This package can be altered to suit your needs or choose another plan from our range.

Call Regan today to discuss further or to arrange a meeting 021 032 8371

Alternatively email [email protected]

 

Photos are artists' impressions only

Area

174 m2

Car Parking

2

Bathrooms

2

Bedrooms

3

42 Kittyhawk Drive, Kinloch, Taupo

LET’S DISCUSS YOUR NEW HOME

Sending...

NEWSLETTER SIGN UP

Sign up now to receive regular updates and advice

Sending...