9 Karaka Place, Kinloch, Taupo

House & Land Package in Quiet Subdivision in Kinloch

Enjoy relaxed, modern living with this house and land package located in a quiet subdivision in the heart of Kinloch.

Designed for comfort and low maintenance, the home features contemporary open-plan living, quality finishes, and excellent indoor–outdoor flow—perfect for everyday living or weekend escapes.

Just minutes from Lake Taupō, walking tracks, the marina, and local amenities, this is an ideal opportunity for families, retirees, holiday home buyers, or investors looking to secure a brand-new home in a sought-after lakeside community.

Features:-

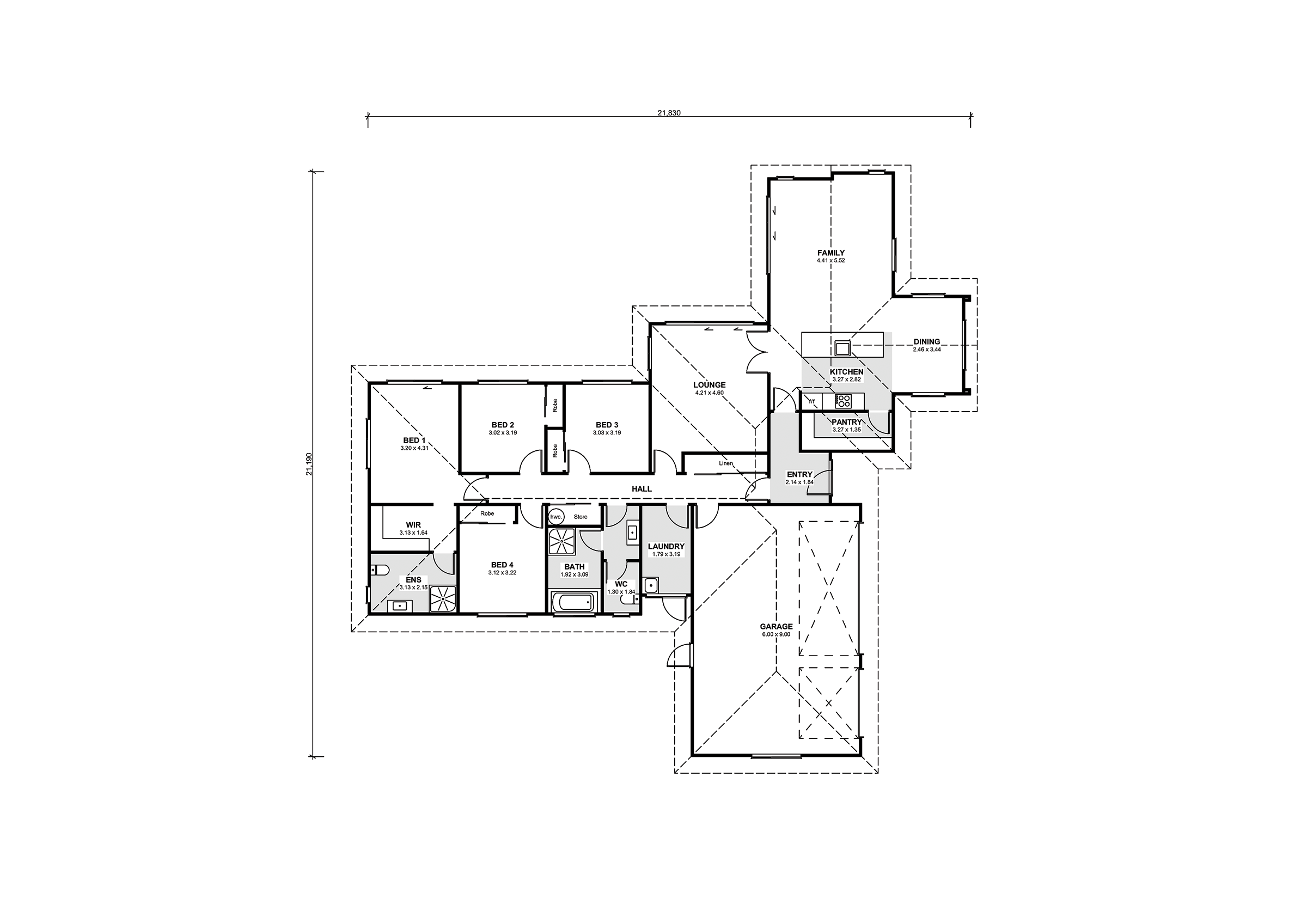
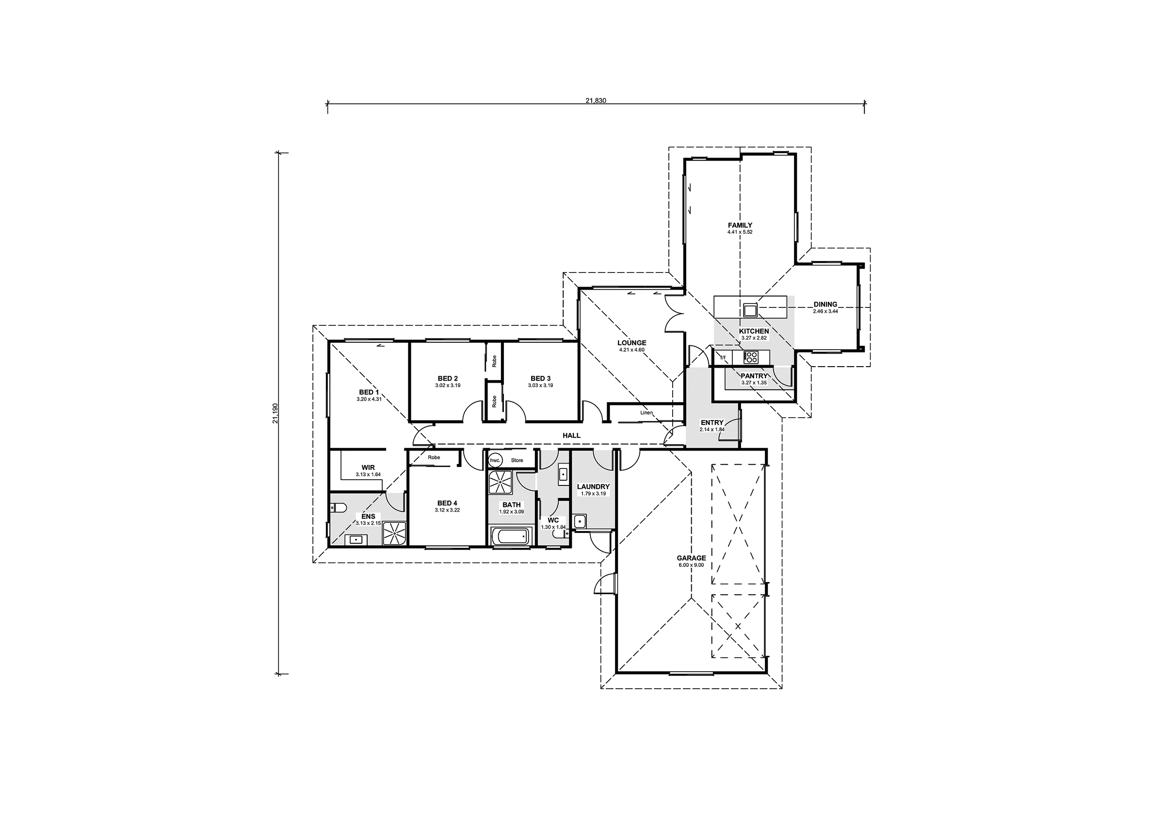
  • Spacious 245.4 m2 floor area with open plan kitchen/dining/living
  • 4 generous bedrooms
  • Master bedroom with walk-in wardrobe and ensuite
  • Ducted heat pump system
  • Quality Fisher & Paykel appliances
  • Garaging for 3 cars
  • Kitchen with walk in pantry
  • Generous 1423m2 section (more or less)

This package can be altered to suit your needs or choose another plan from our range.

Call Regan today to discuss further or to arrange a meeting 021 032 8371

Alternatively email [email protected]

 

Photos are artists' impressions only

Area

245 m2

Car Parking

3

Bathrooms

2

Bedrooms

4

9 Karaka Place, Kinloch, Taupo

LET’S DISCUSS YOUR NEW HOME

Sending...

NEWSLETTER SIGN UP

Sign up now to receive regular updates and advice

Sending...