78 Harakake Drive, Wharewaka, Taupo

Modern Two-Storey Home with Lake Views – Minutes from Taupō Town Centre

Experience contemporary living in this beautifully designed two-storey house and land package, ideally positioned to capture stunning views of Lake Taupō.

Located just a short drive from town, this home offers the perfect blend of convenience and lifestyle.  Enjoy modern architecture, open-plan living, and plenty of natural light — all set within a peaceful, sought-after neighbourhood.

Package Includes:

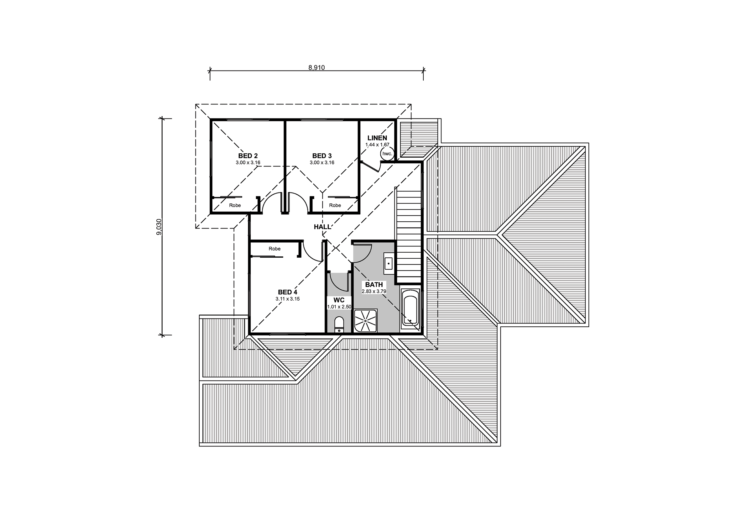
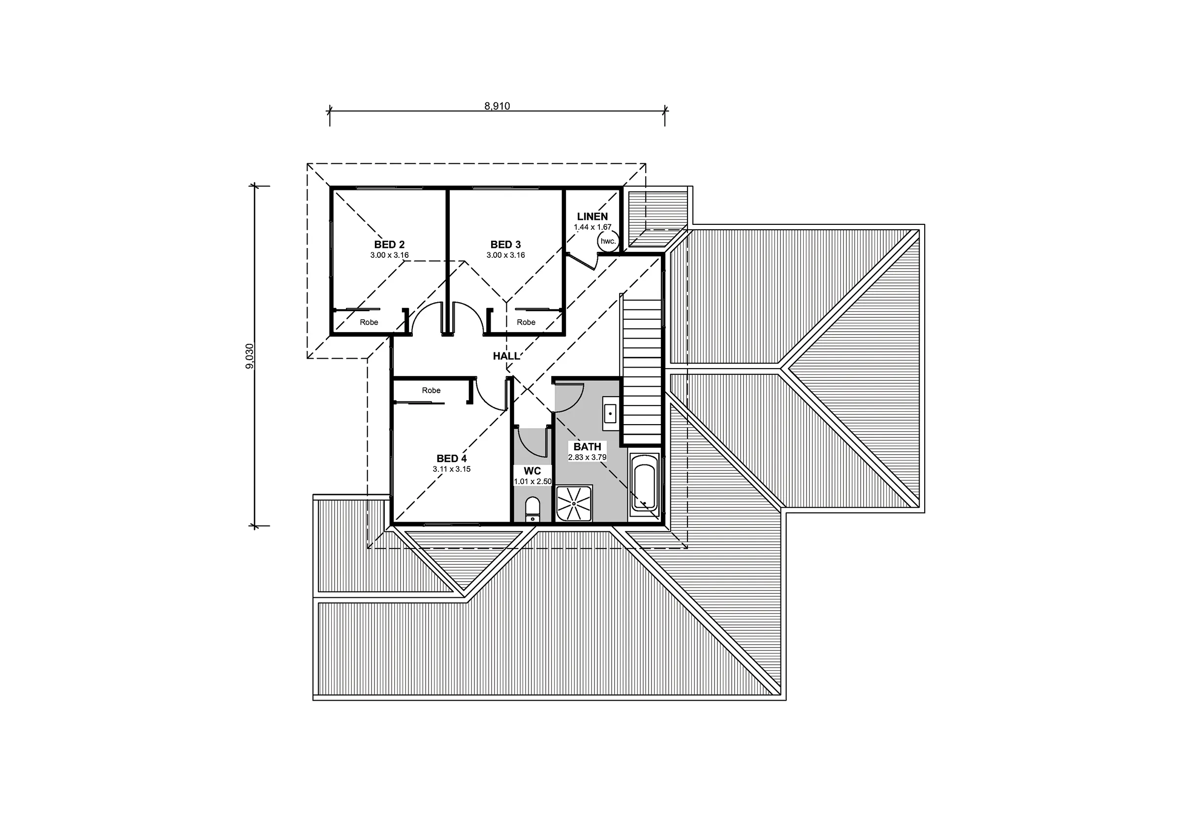
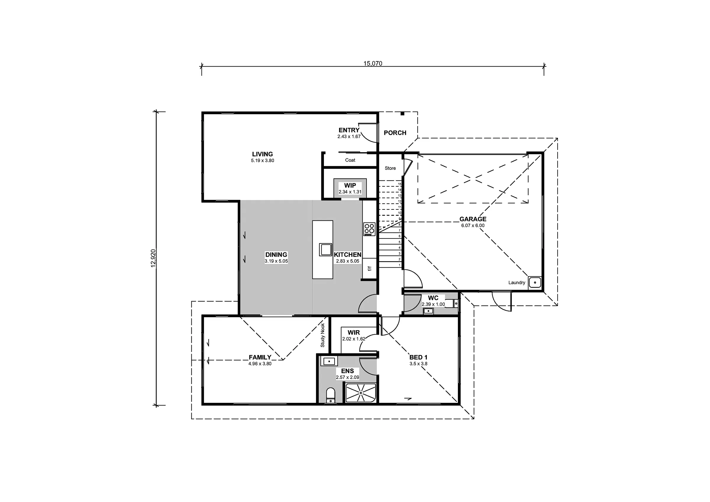
Modern, spacious, 238.5m2 floor plan with 820m2 section (more or less)

  • 2 living areas
  • 4 bedrooms

  • Master bedroom with ensuite and walk-in wardrobe
  • Open plan living

  • Modern kitchen with scullery
  • Quality fixtures, fittings, and appliances throughout

  • Heat Pumps

🌄 Location Highlights:

  • Situated in one of Taupō’s most desirable new subdivision

  • Close to schools, shops, parks, cafes and Taupō's vibrant town centre

  • Enjoy easy access to Lake Taupō, mountain biking tracks, and thermal hot pools

 

This package can be altered to suit your needs, or choose another plan from our range.

Whether you’re looking for a family home, a holiday retreat, or an investment opportunity, this property delivers location, lifestyle, and value in one exceptional package.

Contact Regan Bright on 021 0328371 to discuss to to meet on site.

Alternatively email [email protected]

 

Pictures are artists' impressions only

Area

238 m2

Car Parking

2

Bathrooms

2

Bedrooms

4

78 Harakake Drive, Wharewaka, Taupo

LET’S DISCUSS YOUR NEW HOME

Sending...

NEWSLETTER SIGN UP

Sign up now to receive regular updates and advice

Sending...