Lot 42 Arbor Green, Rolleston, Canterbury

Fantastic all new design incorporating open plan living with 3 generous bedrooms, 2 bathrooms and a double garage.

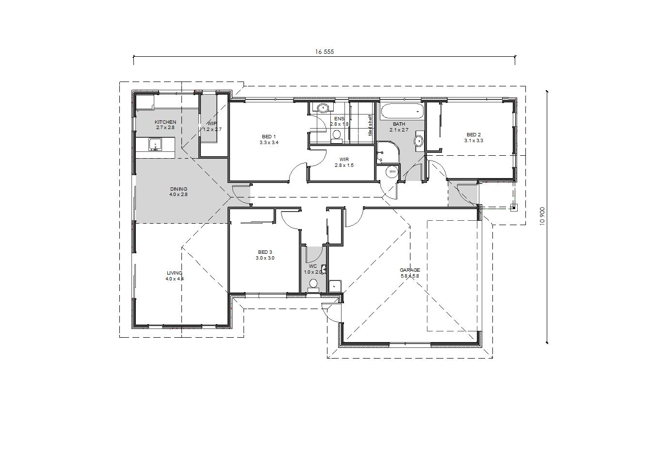
Features of this package include:

  • Exterior Plaster System over 50mm ACC Panel and Feature Brick
  • Internal open plan living
  • Custom designed kitchen with walk-in-pantry
  • Three generous bedrooms
  • Master bedroom with tiled Ensuite and walk-in-robe
  • Beautiful bathroom with a separate toilet
  • Methven Tapware
  • Quality Fisher & Paykel appliances
  • Heat pump with wifi control
  • Quality floorcoverings throughout
  • Driveway & Patio allowance. Clothesline & Letterbox
  • 10 Year Master Build Guarantee

All you need to do is add your own soft landscaping touches to make this plan complete.  This package is at the concept planning stage, so there is plenty of opportunity to include your own personal touches or design a specific plan to suit your personal requirements. 

For more information on this Package and Inclusions, call Trident Homes Christchurch 03 349 0020 or email jmckenzie@tridenthomes.nz 

 

Photos are artists' impressions only

Area

156 m2

Car Parking

2

Bathrooms

2

Bedrooms

3

Lot 42 Arbor Green, Rolleston, Canterbury

LET’S DISCUSS YOUR NEW HOME

Sending...

NEWSLETTER SIGN UP

Sign up now to receive regular updates and advice

Sending...