223 Adler Drive, Ohauiti, TAURANGA

Choose this site-specific design or talk to us about a custom home design to suit your needs or requirements.  Fantastic two-storey family home comprising:

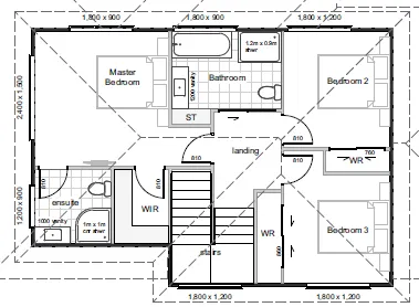
  • 4 generous bedrooms
  • Large open plan Kitchen, Dining & Living space
  • Brick cladding with Weatherboard features

Highlights of this House and Land Package Include:

  • Open Plan Kitchen / Dining / Family
  • Quality Floor Coverings
  • Double Garage
  • Generous Kitchen Joinery Allowance with quality Fisher & Paykel Appliances.

This Floor Plan and Specifications Package can be altered to suit your needs and budget. 

We are also happy to provide alternative plans if this one isn’t right for you.  This is a land and build contract.

Any potential purchaser will be required to settle on the land and enter into an agreement with Trident Homes for the build.

For more information on this Package, call Trident Homes Tauranga/WBOP on 07 574 2944 or Brent Goldfinch, 021 190 4477[email protected]

Copyright to this bespoke plan is exclusive to Trident Homes

Pictures are artists' impressions only

Area

188 m2

Car Parking

2

Bathrooms

3

Bedrooms

4

223 Adler Drive, Ohauiti, TAURANGA

LET’S DISCUSS YOUR NEW HOME

Sending...

NEWSLETTER SIGN UP

Sign up now to receive regular updates and advice

Sending...