19 Finstock Way, Westwood, Rolleston, CHRISTCHURCH

Visit Us: Visit us: 12.00 pm - 4.00 pm, Wednesday to Sunday or viewing by appointment

Our unique showhome at 19 Flinstock Way, Rolleston, is now for sale and available for possession February 2026.  Talk to one of our team about this fantastic opportunity to secure this property. 

Located in the vibrant Westwood community, this compact yet feature-packed marvel exemplifies thoughtful design and modern living.

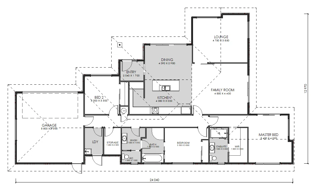
The exterior showcases a striking blend of designer brick and vertical linea oblique cladding, accented by an eye-catching gable and entryway. Inside, the spacious hallway offers convenient coat and shoe storage, leading into an open family area with raking ceiling scissor trusses for an airy, expansive feel.

The central kitchen hub, featuring barn doors and a back-to-back gas fire, serves as the heart of the home.  Large sliding doors in the family and living areas enhance the open, airy ambience, seamlessly connecting indoor and outdoor spaces.

Outdoors, a large deck area provides the perfect setting for entertaining, with brick-raised gardens, built-in seating, and a BBQ nook. 

The expansive back lawn and private deck off the master bedroom enhance the outdoor living experience, offering ample space for relaxation and family activities.

The master bedroom is a private retreat with a tiled ensuite and a generous walk-in wardrobe, complete with a full-length dressing mirror.  Additional bedrooms are located at the front of the house, ensuring privacy and shared access to a bathroom and a separate toilet. Functional spaces include a cleverly tucked-away laundry in the garage, equipped with built-in storage to maximise space.

Visit this showhome to experience its unique charm and innovative design first hand.

Area

184 m2

Car Parking

2

Bathrooms

2

Bedrooms

3

19 Finstock Way, Westwood, Rolleston, CHRISTCHURCH

LET’S DISCUSS YOUR NEW HOME

Sending...

NEWSLETTER SIGN UP

Sign up now to receive regular updates and advice

Sending...