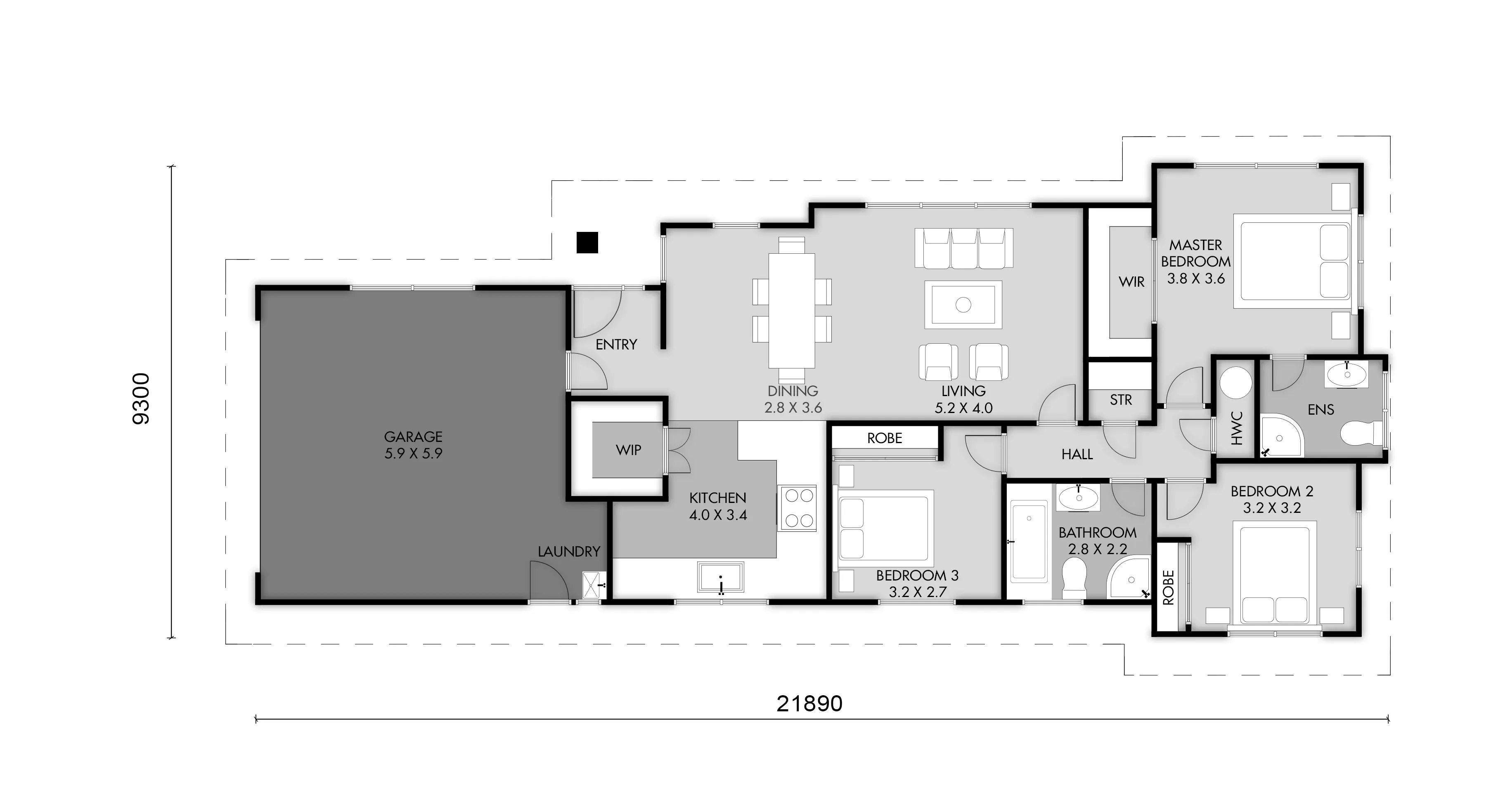
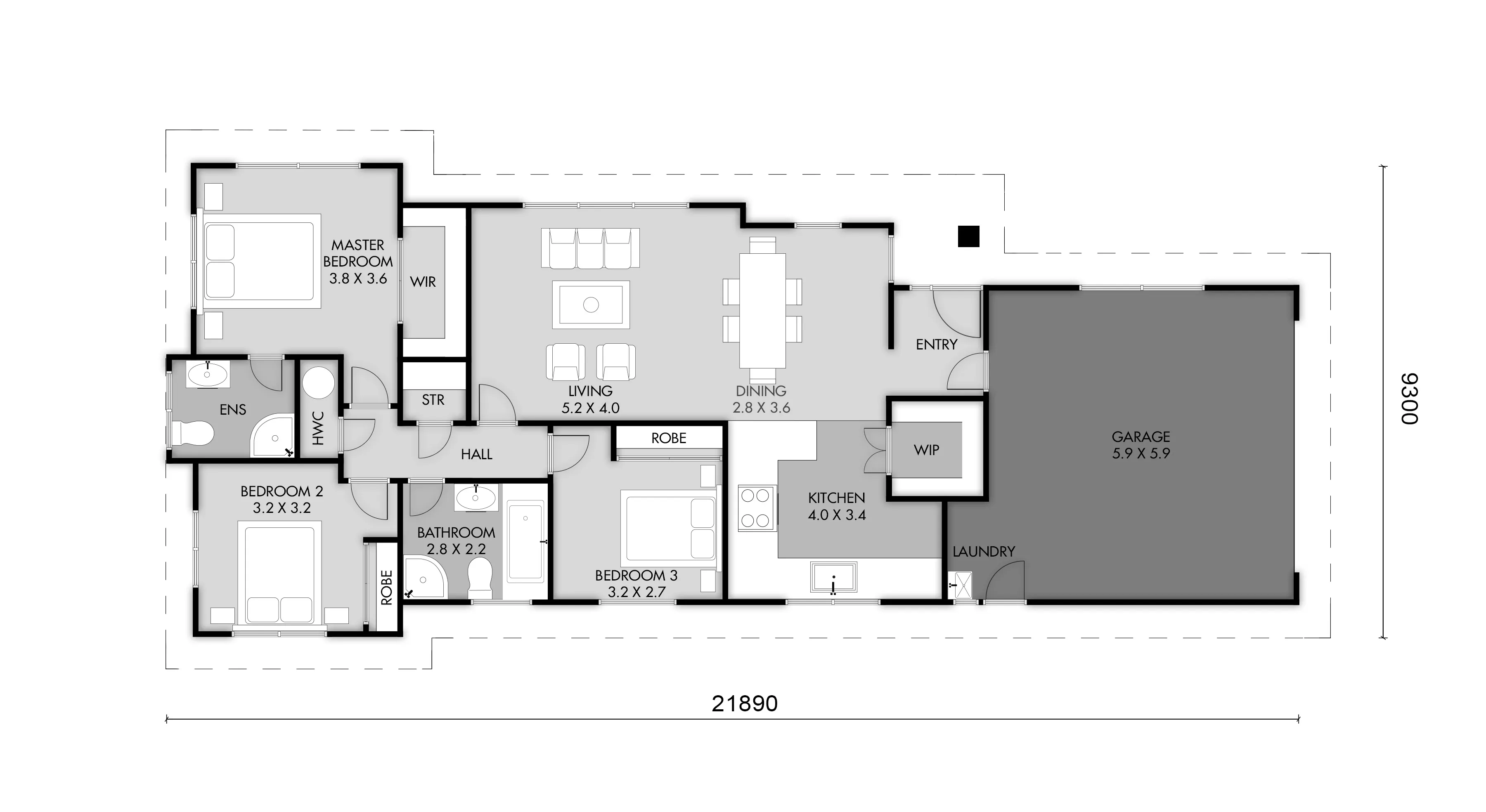
Area

163 m2

Car Parking

2

Bathrooms

2

Bedrooms

3

Plan 14-15

LET’S DISCUSS YOUR NEW HOME

Sending...

YOU MIGHT ALSO LIKE

Plan 14-50

188M2

Car Parking

2

Bathrooms

2

Bedrooms

3

Plan 14-60

202M2

Car Parking

2

Bathrooms

2

Bedrooms

3

Plan 14-75

223M2

Car Parking

2

Bathrooms

2

Bedrooms

4

NEWSLETTER SIGN UP

Sign up now to receive regular updates and advice

Sending...