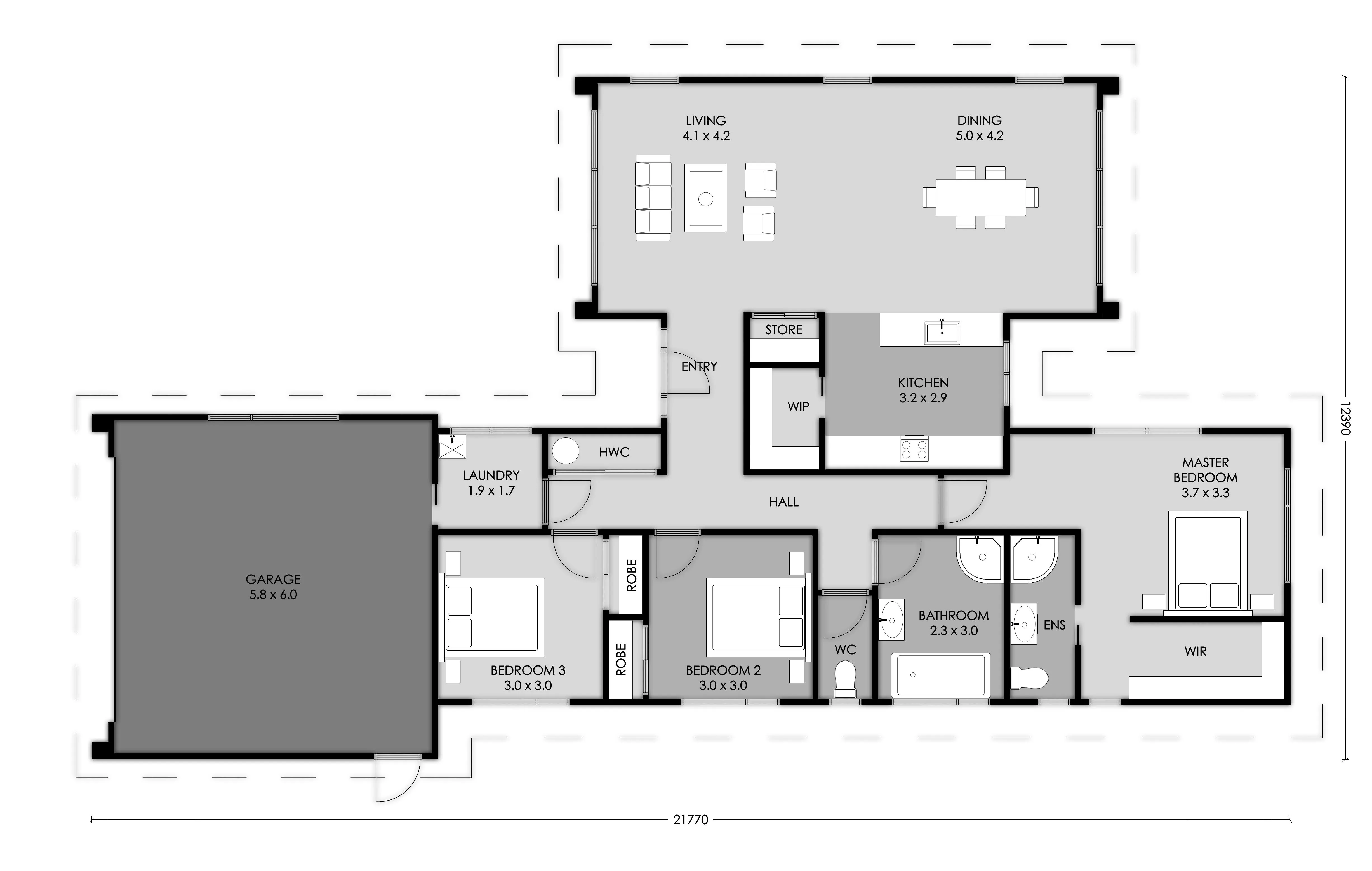
Area

177 m2

Car Parking

2

Bathrooms

2

Bedrooms

3

Plan 14-40

LET’S DISCUSS YOUR NEW HOME

Sending...

YOU MIGHT ALSO LIKE

Plan 14-95

244M2

Car Parking

2

Bathrooms

2

Bedrooms

3

Plan 14-10

155M2

Car Parking

2

Bathrooms

1

Bedrooms

3

Plan 14-105

281M2

Car Parking

2

Bathrooms

2

Bedrooms

4

NEWSLETTER SIGN UP

Sign up now to receive regular updates and advice

Sending...