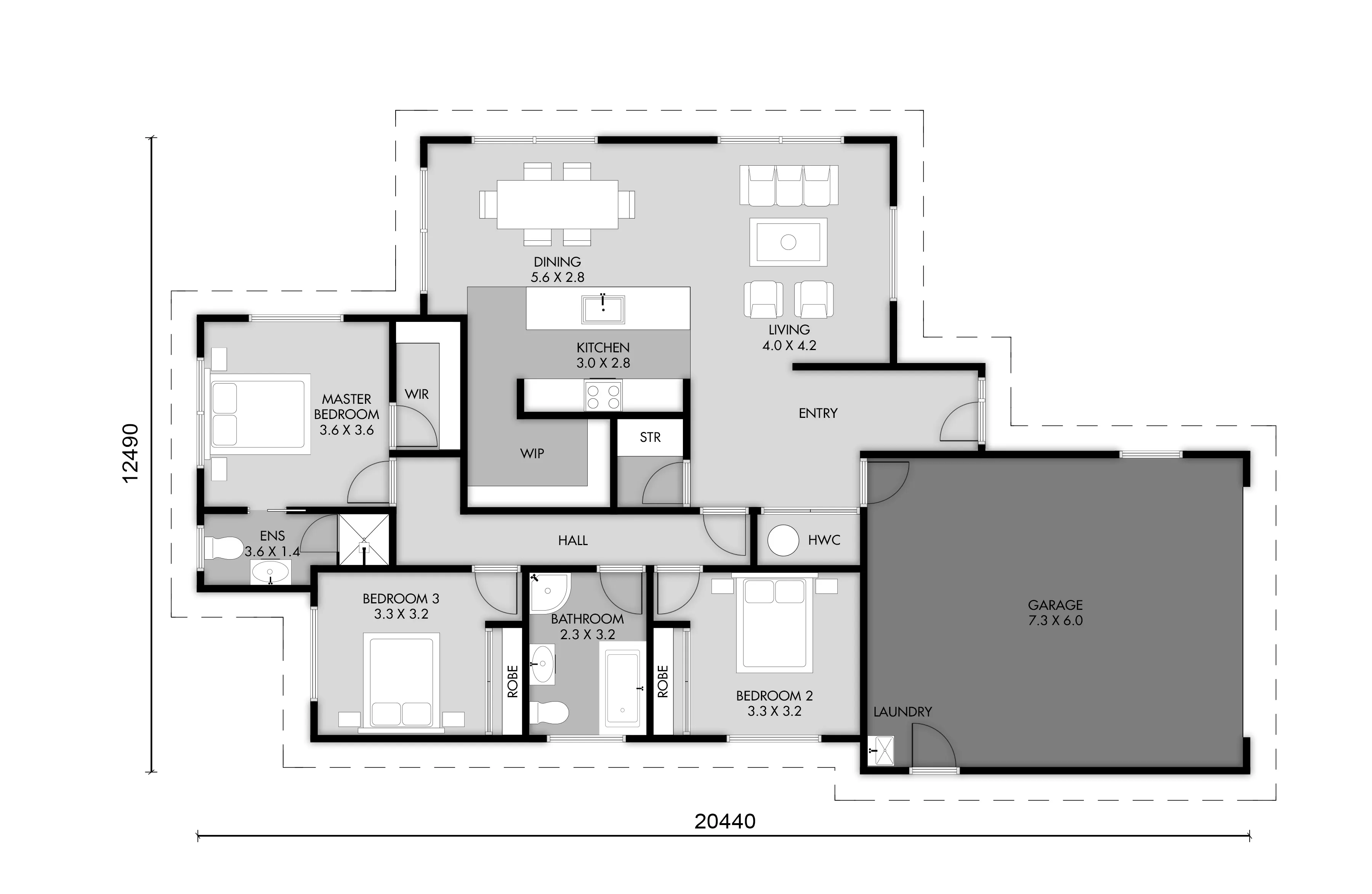
Area

188 m2

Car Parking

2

Bathrooms

2

Bedrooms

3

Plan 14-50

LET’S DISCUSS YOUR NEW HOME

Sending...

YOU MIGHT ALSO LIKE

Plan 14-75

223M2

Car Parking

2

Bathrooms

2

Bedrooms

4

Plan 14-80

226M2

Car Parking

2

Bathrooms

2

Bedrooms

4

Plan 14-05

152M2

Car Parking

2

Bathrooms

2

Bedrooms

3

NEWSLETTER SIGN UP

Sign up now to receive regular updates and advice

Sending...